新闻中心

NEWS

铭记三连冠辉煌!辽篮1400万拿地建博物馆,效果图出炉,明年建成!

2025-10-14

北京时间9月18日,辽宁篮球迷很快就要有一个新的打卡地标了!根据解说员哈秋在社媒发布的最新消息,辽宁篮球博物馆工程进度顺利,预计在明年年初就能建成,并且在上半年正式对外开放使用。

这个博物馆被称作是“辽宁篮球的又一地标性建筑”,它的建设被看作是辽篮投资人决心深耕辽宁篮球的一大手笔操作,而且这种专门为篮球俱乐部建设的博物馆在中国篮坛目前是独一份。

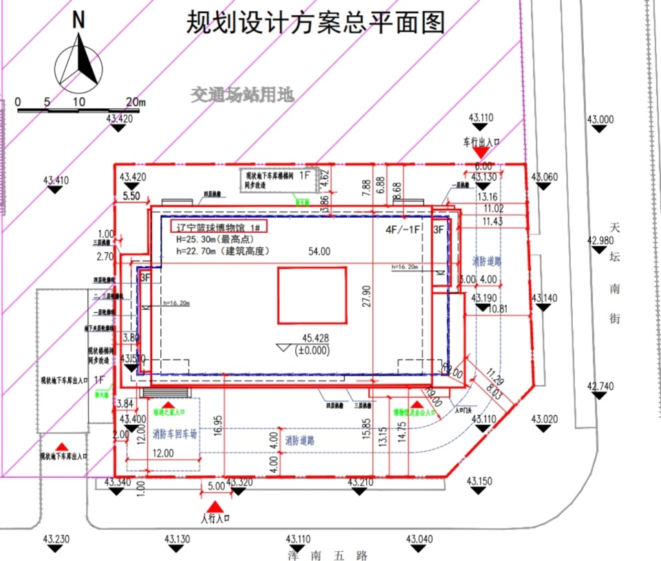
据了解,这个博物馆位于沈阳奥体旁边,地理位置相当不错。项目规模不小,地上有四层,地下一层,总建筑面积达到6663.82平方米。辽宁体育文化发展公司为了这个项目投入了不少资金,光是地块成交价就达到了1400多万元。

不仅能吸引, 体旁边

建设这个博物馆主要是为了庆祝辽宁男篮过去取得的三连冠成绩,这也是辽宁省以辽宁篮球为骄傲的一种体现。等到博物馆建成后,预计会成为当地旅游业的一个新亮点,不仅能吸引篮球迷前来参观,也能进一步推广辽宁篮球文化,形成一个双赢的局面。

北京时间, 赢的局面

对辽宁球迷来说,这绝对是个好消息。以后去看比赛的同时,还能顺便参观博物馆,了解一下辽宁篮球的历史和辉煌成就。说不定在博物馆还能遇到球员,这对球迷来说会是很特别的体验。


全国热线:027-9043904

联系地址:黑龙江省黑河市逊克县奇克镇

Copyright 2024 满冠体育官网-领先的在线体育赛事与投注平台-ManguanSports All Rights by 满冠体育